Vous êtes ici :
Accueil
> Notre Offre > Hors Standard > Usinage de précision

Usinage de précision
Du brut à la pièce finie : un savoir-faire aligné sur vos exigences avec USIPRO
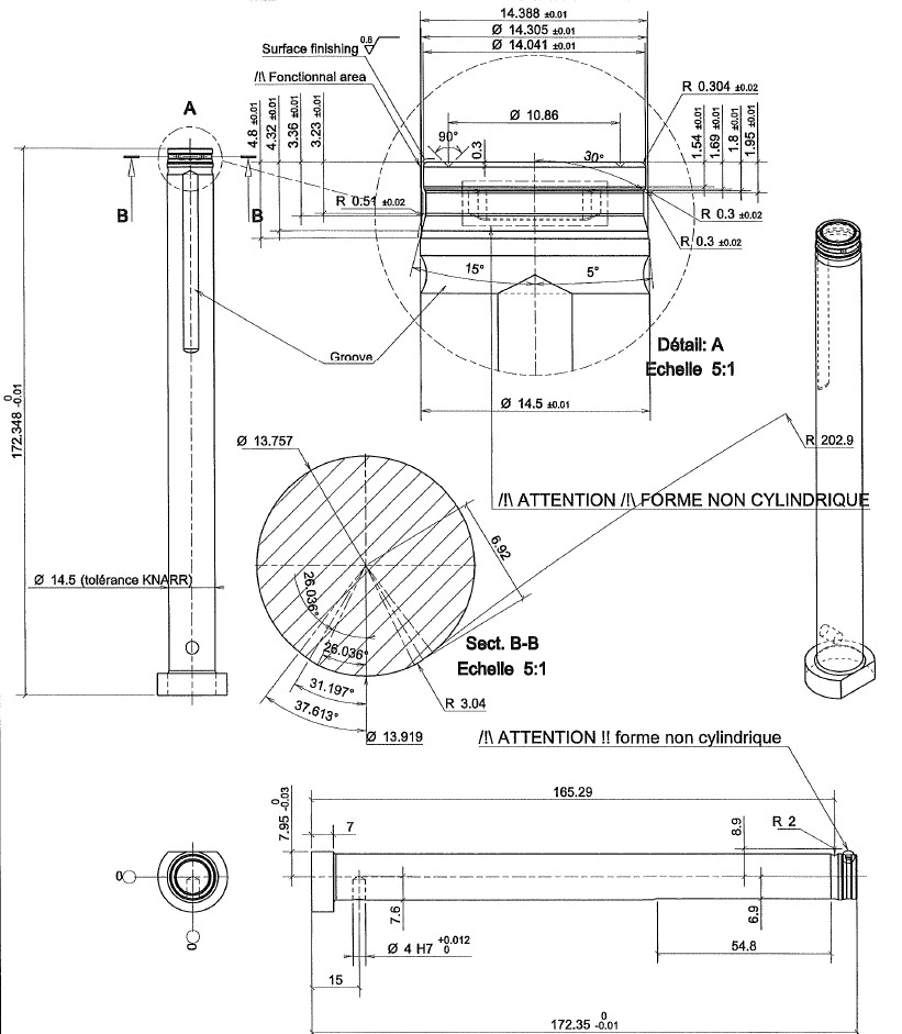
De l’usinage complexe à la finition, USIPRO pilote un réseau d’ateliers certifiés pour produire vos pièces à tolérances serrées, à l’unité comme en série. Nous assurons un suivi complet pour toutes vos pièces spéciales sur plan : broches, colonnes de guidage, bagues de guidage, éjecteurs tubulaires, buses, obturateurs, et plus généralement tout composant mécanique de précision.
Notre promesse tient en trois mots : conformité, délai, traçabilité.
Et en quelques mots :
- Tolérances tenues : ± 5 µm (selon matériaux et opérations)
- Délai standard : 4 à 6 semaines — express possible sur étude
- Rapport de contrôle et certificat matière fournis pour chaque lot
Notre mission :
Convertir vos contraintes métier en process robustes
Chaque projet démarre par une lecture technique du besoin : fonction de la pièce, environnement d’usage, couples de frottement, contraintes thermiques, aspects esthétiques éventuels.
Vous avez besoin d'un usinage de précision ?
À partir de vos plans (2D/3D), nous proposons, lorsque nécessaire, des recommandations DFM/DFA (Design for Manufacturing/Assembly) pour sécuriser la tenue des tolérances, le coût de revient et la répétabilité en série.
USIPRO orchestre la chaîne complète !
Approvisionnement matière, usinage, traitements thermiques/surface, contrôle dimensionnel, finitions, emballage technique et logistique. Un interlocuteur unique porte la qualité, le coût et le délai.
Quels sont les compétences clés de l'usinage de précision ?
Tournage CN & décolletage
Ø 0,5 à 350 mm, longueurs jusqu’à 1 008 mm. Gestion des états de surface, chanfreins, rayons, filetages standards et spéciaux, gorges étroites, perçages axiaux et transversaux. Possibilité de reprises entre pointes et contrôle en production.
Fraisage 3–5 axes
Pièces/plaques jusqu’à 2 500 × 1 500 × 500 mm, avec reprise 6 faces. Usinages prismatiques et géométries complexes, poches profondes, perçages inclinés, tolérances de position serrées, palpage in-process pour sécuriser les cotes critiques.
Rectification plane & cylindrique
La capacité de croissance est l'aptitude d'un système à évoluer et à s'adapter, en répondant à des demandes croissantes et à des besoins en constante évolution pour une réussite à long terme.
Électroérosion (EDM fil & enfonçage)
Angles vifs, découpes fines, faible zone affectée thermiquement. Idéal pour formes complexes impossibles en outil coupant ou pour éviter les déformations sur pièces minces.
Micro-usinage
Perçages < Ø 0,3 mm, micro chanfreins, gravures techniques (identification, repères d’assemblage), érosion fil de précision. Contrôles par vision 2D/3D selon besoin sur études.
Finitions & traitements
Polissage, sablage, anodisation, nickel chimique, WS₂, peinture technique, brunissage, décapage, conversion chimique… Chaque finition est adaptée à la fonction (anti-corrosion, anti-frictions, esthétique, tenue diélectrique).
Matériaux maîtrisés en usinage de précision
Aciers alliés & inox (ex. 316L, 17-4PH), aluminium séries 2000/6000/7000, titane TA6V, superalliages (Inconel, Hastelloy, moldmax), cuivre & laiton, plastiques techniques (PEEK, POM, PTFE) et composites.
Pour chaque nuance, nous adaptons outils, stratégies d’usinage, et plans de contrôle pour concilier tenue dimensionnelle et état de surface. Les certificats matière accompagnent les livraisons.
Contrôle & traçabilité :
La conformité n’est pas négociable !
Nous fournissons pour chaque livraison un rapport de contrôle reprenant les caractéristiques critiques et l’ensemble des documents qualité : certificats matière, fiches de traitements, fiches de contrôle, marquages possible sur demande.
Méthode projet :
De la cotation au colis de votre fabrication de précision
1. Analyse & chiffrage
Étude de plans, identification des cotes clés, recommandations DFM/DFA si utiles. Chiffrage incluant délai, prix, plan de contrôle et finitions.
L'étude de faisabilité technique est une étape cruciale pour garantir le succès des projets de nos clients. Nous les accompagnons en analysant leurs besoins spécifiques et en évaluant les contraintes techniques, financières et temporelles. Notre équipe d'experts réalise des études approfondies, incluant des simulations et des prototypes, pour identifier les solutions les plus adaptées. Grâce à une communication transparente et régulière, nous assurons un suivi personnalisé tout au long du processus. Notre objectif est de fournir des recommandations claires et pertinentes, permettant à nos clients de prendre des décisions éclairées et de maximiser la viabilité de leurs projets.

2. Production
Nous nous engageons à vous fournir une assistance et des ressources exceptionnelles pour vous aider à tirer le meilleur de notre plateforme.
3. Finitions & emballage
Nous nous engageons à vous fournir une assistance et des ressources exceptionnelles pour vous aider à tirer le meilleur de notre plateforme.
4. Livraison & retour d’expérience
Nous nous engageons à vous fournir une assistance et des ressources exceptionnelles pour vous aider à tirer le meilleur de notre plateforme.
Cas d’usage typiques
Voici les cas d'usage typique que nous pouvons rencontrer chez USIPRO
Guidage et cinématique
Bagues et colonnes rectifiées pour ensembles de guidage, tenue de circularité et concentricité en charge.
Hydraulique & fluide
Corps de soupapes, buses, obturateurs usinés 5 axes avec micro-chanfreins de rodage, rugosités maîtrisées pour l’étanchéité.
Éjection & moule
Ejecteurs tubulaires, broches avec traitements combinés (dureté cœur/surface) et polissages localisés.
Pièces esthétiques techniques
Usinages aluminium anodisés (classe 2) avec contrôle colorimétrique et masquages dédiés.
Questions fréquemment posées
Voici quelques questions fréquentes sur notre entreprise.
Nous tenons ± 5 µm sur des caractéristiques sélectionnées, selon matière, géométrie et process. Pour chaque projet, nous cadrons les cotes critiques et le mode de contrôle associé (CMM, jauge dédiée, gabarit).
Le standard est 4 à 6 semaines après validation technique. Des voies express sont possibles selon la complexité et la charge atelier.
Oui, du brut à la pièce finie : usinage, traitements, finitions, marquages, contrôle, emballage technique.
Nous couvrons prototype, pré-séries et séries récurrentes. Les mêmes standards qualité s’appliquent à chaque lot.
Au minimum : rapport de contrôle et certificat matière. Sur demande : FAI/PPAP, PV d’étanchéité, capabilités, courbes de traitement, certificats de finition, marquages.
Pourquoi Usipro ?
Découvrez pourquoi vous pouvez faire appel aux équipes d'USIPRO
Un réseau d'experts
Réseau éprouvé d’ateliers qualifiés par USIPRO, chacun expert d’une niche (micro-usinage, 5 axes, EDM, rectif).
interlocuteur unique
Un expert dans son domaine vous accompagne durant toute la durée de votre projet.
Précision
Tolérances serrées tenues en série grâce à des gammes robustes et du contrôle in-process.
Agilité
Prototypage rapide, pré-séries, séries récurrentes avec stabilisation des temps de cycle..
Process de démarrage
1. Envoyez vos plans (2D/3D) + quantités + délais cibles + finitions.
2. Réception d’une étude sous 48 h : chiffrage, délai, plan de contrôle proposé.
3. Validation technique, éventuel FAI, lancement matière.
4. Production & contrôles, puis livraison avec dossier complet.
Etude de faisabilité / Demande de devis
Parlez-nous de votre projet ! Un devis clair et une étude sous 48h - 72h.
